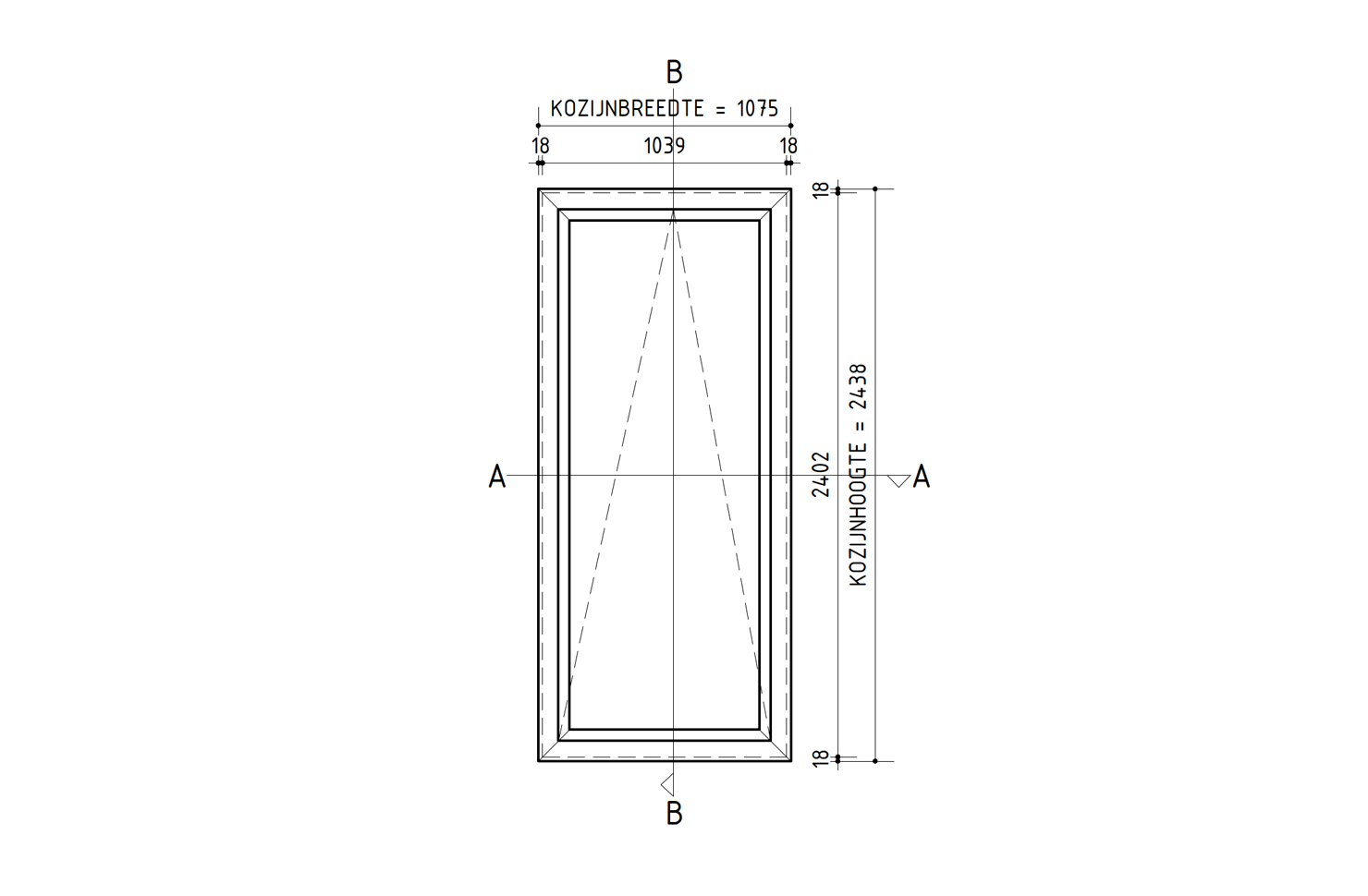
Kunststof kozijn Gealan S9000 NL 1075x2438mm

Staffelprijzen
Lengte 1-0 mm Meer?
Prijs gratis bel ons 

Product omschrijving

1x Kunststof kozijn Gealan S9000 NL - KIEPRAAM
Exclusief glas (te bestellen tegen meerprijs)

Kleur buitenzijde: RAL7016
Kleur binnenzijde: RAL7016

1075x2438mm. (BxH)

Bekijk de download hieronder (pdf) voor de maten en het profiel.

Restpartij R384

 

Afname alleen per vol pakket, geen garantie. Tussentijdse verkoop voorbehouden, OP=OP

Downloads bij dit product

  • Tekening kozijn bestand .pdf | bestandgrootte 211,93KB
Stel jouw vraag over dit product
Staffelprijzen
Lengte 1-0 mm Meer?
Prijs gratis bel ons